IKEDA
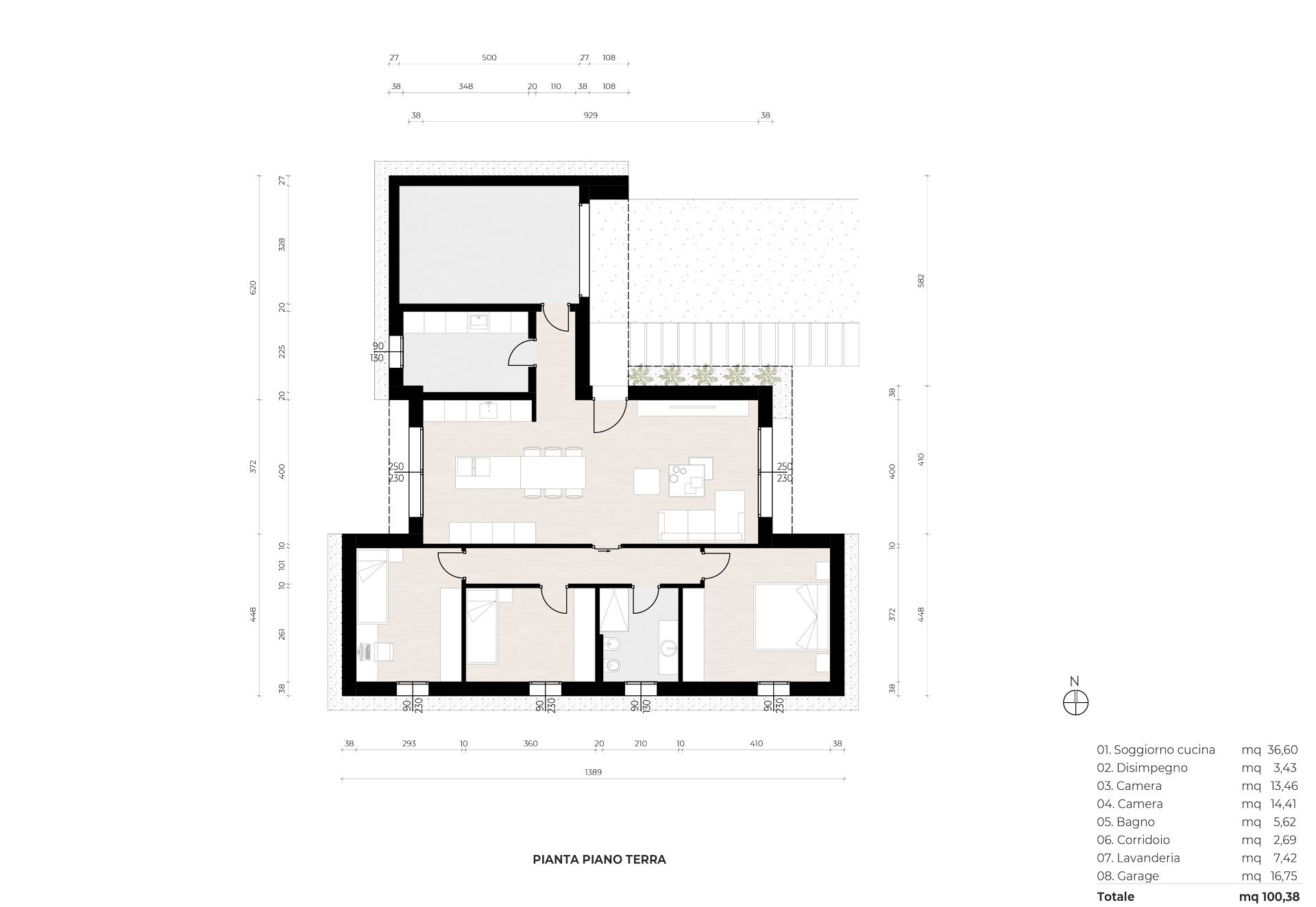
Villetta a un piano da 100mq
Linee pulite, volumi essenziali e un rapporto diretto con il paesaggio definiscono questo modello abitativo, pensato per chi cerca equilibrio tra design, comfort e funzionalità.
Il cuore dell’abitazione è il grande affaccio verso l’esterno: una zona giorno che si apre naturalmente sul portico coperto, trasformando lo spazio outdoor in una vera estensione della casa. Un luogo protetto ma aperto, ideale per condividere momenti, pranzi e tempo di qualità, in continuità con il verde circostante.
