Skip to content
IPPEI - F

IPPEI - F

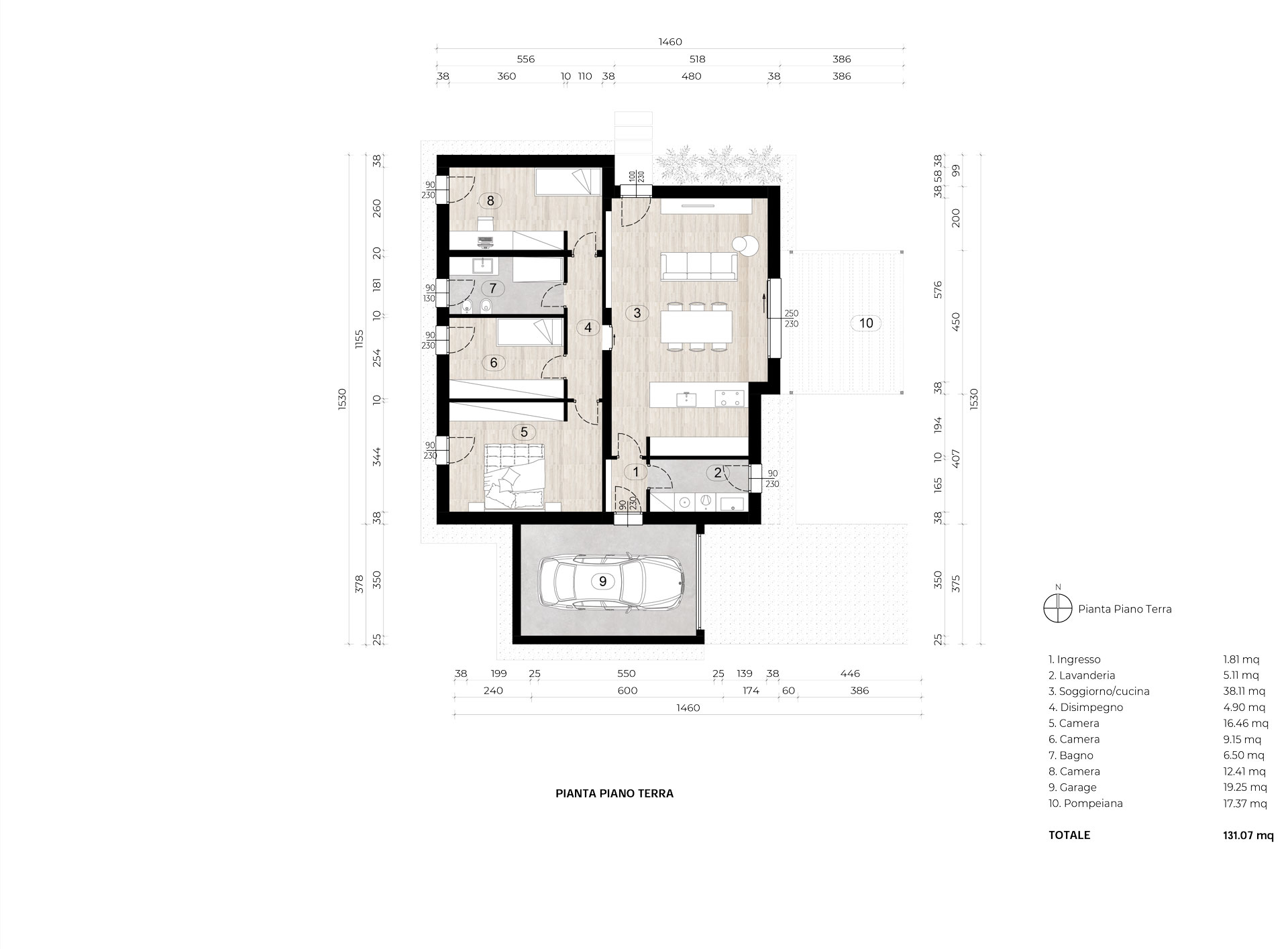
Villa a un piano 130 mq

Il modello IPPEI reinterpreta il concetto classico di casa con tetto a falda in chiave contemporanea, offrendo una soluzione architettonica che rassicura e affascina allo stesso tempo. La silhouette, caratterizzata da linee decise e pulite, nasconde un cuore tecnologico e spazi pensati per il vivere moderno.

L'Esterno: Equilibrio e VersatilitàL'estetica esterna gioca sul contrasto cromatico tra il bianco candido delle pareti e le tonalità antracite del tetto e delle finiture. Il garage integrato e il porticato esterno con pergola offrono una continuità visiva perfetta, trasformando l'area outdoor in una vera e propria stanza all'aperto, ideale per pranzi estivi e momenti di relax.

L'Interno: Un Rifugio AccoglienteAll'interno, IPPEI rivela un'anima calda e sofisticata. L'ampia zona living è dominata da tonalità terra e materiali naturali, con soffitti che seguono l'inclinazione del tetto regalando respiro e dinamismo agli spazi. L'illuminazione integrata e il design minimale degli arredi creano un'atmosfera ovattata, dove ogni dettaglio è studiato per il benessere quotidiano.

Scarica planimetria completa

Realizza la tua casa

Dal progetto a un edificio reale


Scopri anche

MICHIGAN

MICHIGAN